Special-purpose forklifts
Study mode
Question of 276
1. 1. A technical device subject to technical supervision may be operated on the basis of:
a) oral or written permission issued by an authorized conservator
b) a valid decision allowing operation issued by the relevant technical supervision authority
c) CE marking placed on the deviced) declaration of conformity issued by the manufacturer2. 2. Which of the listed activities does not fall within the responsibilities of the UTB operator:
a) performing minor repairs of the device within the scope of their education and skills
b) following the operation instructions regarding the operation of UTBc) familiarizing themselves with the work plan and the size of the loads being transportedd) all answers are correct3. 3. The terms of maintenance inspections of technical devices:
a) are included in the operation instructions of the device
b) are determined by the device conservatorc) are specified in the protocol by the inspector conducting the examinationd) all answers are correct4. 4. Technical supervision is defined as:
a) specific actions defined by law aimed at ensuring the safe operation of technical devices and devices for recovering fuel vapor, as well as actions aimed at ensuring public safety in these areas
b) institutions controlling the technical condition of devicesc) The Office of Technical Supervisiond) UDT, WDT, TDT5. 5. Technical supervision over technical devices is performed by:
a) The Office of Technical Supervision and specialized technical supervision units
b) The Office of Technical Supervision and organizations authorized by UDTc) The Office of Technical Supervision and foreign technical supervision unitsd) all answers are correct6. 6. The change of technical parameters or the change of the construction of a technical device is treated as:
a) modernization of the technical device
b) repair of the technical devicec) removal of defects and other irregularities of the technical deviced) creation of a new device7. 7. The agreed repair or modernization of technical devices can be performed by:
a) the repairer or modernizer who has the authorization issued by the relevant technical supervision authority
b) the operator of the technical device who has appropriate experience in repairs or modernizationc) the conservator who has appropriate experience in repairs or modernizationd) a competent operator to a small extent8. 8. The Act on technical supervision specifies the following forms of technical supervision:
a) total, partial, limited
b) full, limited, simplified
c) full, cyclical, sporadicd) UDT, WDT, TDT9. 9. The decision allowing the operation of a technical device is issued by:
a) the conservator after performing an inspection with a positive resultb) the relevant technical supervision authority or the operator of the technical device authorized by the relevant technical supervision authorityc) the relevant technical supervision authority or the public administration authority authorized by the relevant technical supervision authority
d) the relevant technical supervision authority
10. 10. The operator of the technical device may undertake work when:
a) the device has a valid decision allowing its operation if required by the relevant regulationsb) has a qualification certificate of the appropriate categoryc) the device has a current positive result of the maintenance inspection
d) all of the above conditions must be met simultaneously
11. 11. The operator of the technical device can undertake work when:
a) the device has a current entry in the maintenance log confirming the device's efficiencyb) has undergone appropriate position trainingc) the device has a valid decision allowing for operation
d) all of the above conditions must be met simultaneously
12. 12. In the event of non-compliance with the technical supervision regulations by the operator, the operator:
a) receives a written warningb) receives post-inspection recommendations
c) is subject to a fine or restriction of freedom
d) answers a and b are correct13. 13. In the event of a threat to human life or health, as well as property and the environment, the inspector:
a) issues a decision suspending the operation of the technical device
b) issues a penalty ticketc) provides written instructions to the operatord) all answers are correct14. 14. In the case of dangerous damage to the technical device or an accident, the operator:
a) immediately notifies UDT of the incident
b) informs the manufacturer of the device about the causes of the incidentc) immediately repairs the device and returns it to further operationd) reports the device for repair15. 15. The qualification certificate for operation can be revoked by:
a) the relevant technical supervision authority
b) the operator of the technical devicec) the health and safety inspectord) the National Labor Inspectorate16. 16. Technical devices not subject to technical supervision are:
a) cranes with a capacity of up to 3.2 tb) hoists and winches as well as overhead cranesc) lift trucks and mobile platforms
d) transport slings
17. 17. Technical devices subject to technical supervision are:
a) cabin and chair liftsb) storage systems and devices for people with disabilitiesc) freight lifts and ship lifts
d) all answers are correct
18. 18. A dangerous malfunction of a technical device is:
a) any defect of the UTBb) an unforeseen malfunction, as a result of which the device is suitable for partial operationc) an unforeseen malfunction, as a result of which it is suitable for operation only at reduced parameters
d) an unforeseen malfunction, as a result of which the device is unsuitable for operation or its further operation poses a threat
19. 19. An accident is:
a) a sudden event that caused bodily injury or death
b) a sudden event that caused a work interruptionc) a sudden event that results in the exclusion of the technical device from operationd) any defect of the UTB caused by a random cause20. 20. Lifting and transporting people by a technical device intended solely for the transport of loads requires:
a) agreement with the relevant technical supervision authority
b) agreement with the supervisorc) agreement with the OHS serviced) is possible with special caution and under the supervision of an inspector21. 21. The person responsible for ensuring proper operation and maintenance of the technical device is:
a) the operator of the technical device
b) the relevant technical supervision authorityc) the National Labor Inspectorated) UDT inspector22. 22. The required maintenance inspections mandated by law are performed by:
a) a person holding a qualification certificate for maintenanceb) an employee of the authorized service of the device manufacturer (provided they have qualification certificates for maintenance)c) in-house maintenance services
d) answers a and b are correct
23. 23. The maintenance log of the technical device is kept by:
a) UDT inspector in the device's inspection bookb) authorized operatorc) designated employee of the operator
d) maintenance technician of the technical device
24. 24. Acceptance tests are conducted for technical devices:
a) within the timeframes consistent with the provisions of the regulation on technical supervision conditions
b) before issuing the first decision allowing operation
c) after the repair of the technical deviced) after each change of the operator25. 25. Periodic tests are conducted for technical devices under supervision:
a) limited
b) full
c) simplifiedd) all answers are correct26. 26. The absence of the conservator during the examination of the technical device requires at least:
a) prior agreement of this fact with the authority of the relevant technical supervision unit
b) submission of a written justification for the conservator's absencec) submission of a medical certificate confirming the conservator's inability to workd) all answers are correct27. 27. A candidate for operating a technical device must:
a) be at least 18 years old
b) have at least vocational educationc) have at least 1 year of work experienced) all answers are correct28. 28. The operator of a technical device is obliged to stop work when:
a) his physical and mental condition on the day of work is inappropriateb) he finds that further operation of the device poses a threatc) the device is defective
d) all answers are correct
29. 29. The terms of maintenance inspections of the device may be specified:
a) in the operation manual of the deviceb) in the act on technical supervisionc) in the regulation specifying the technical conditions of technical supervision
d) answers a and c are correct
30. 30. The terms of periodic and ad-hoc inspections of the UTB are specified:
a) in the act on technical supervision
b) in the regulation specifying the technical conditions of technical supervision
c) in the design documentation of the deviced) in the maintenance log31. 31. The operator of the technical device is obliged to:
a) follow the operating instructions regarding the operation of the device
b) follow the operating instructions regarding the maintenance of the devicec) perform repairs of the deviced) all answers are correct32. 32. The technical device can be operated based on:
a) the current sticker from the relevant technical supervision authority specifying the date of the next inspectionb) the current entry of the device's conservator in the maintenance log
c) a valid decision allowing operation issued by the relevant technical supervision authority
d) a positive protocol from the periodic or acceptance inspection33. 33. After performing activities on the technical device, the inspector prepares:
a) operating instructions for the device
b) decisions and a protocol of the performed activities
c) CE declarations of conformityd) all answers are correct34. 34. The repair and modernization of the technical device is performed by:
a) the operator within the scope of their skillsb) the conservator
c) an authorized establishment
d) the operator35. 35. The person directly responsible for the safe operation of the technical device is:
a) the operator of the device
b) the manufacturer of the devicec) the workplace health and safety inspectord) the UDT inspector36. 36. Information regarding the rules for the safe operation of the technical device is included in:
a) the operation manual of the device
b) the Act on Technical Supervisionc) the maintenance logd) the protocol from the inspection conducted by the UDT inspector37. 37. As part of the activities before starting work, the operator:
a) checks the technical condition of the device through inspectionb) performs static and dynamic testsc) performs operational tests of the device
d) answers a and c are correct
38. 38. Qualification certificates for operating technical devices subject to technical supervision are issued by:
a) the training company after a positive result of the verification examb) the OHS inspector based on the certificate of course completionc) the employer based on passing the exam
d) the relevant technical supervision authority
39. 39. Overloading the UTB during operation:
a) is prohibited
b) is permissiblec) is permissible but only up to 125% of the rated loadd) is permissible but only up to 110% of the rated load40. 40. Occasional operational tests are performed, among others:
a) after each fault is removed by the maintenance technician
b) after replacing the load cables
c) once a yeard) after an accident on the device41. 41. The duties of the operator are specified in:
a) in the operation manual of the technical device
b) in the maintenance logc) in the technical supervision actd) all answers are correct42. 42. Periodic inspections of the technical device are carried out by:
a) a conservator with the appropriate qualification certificate
b) an inspector of the relevant technical supervision authority
c) a manufacturer service employeed) the operator43. 43. The technical supervision unit is:
a) Technical Supervision Officeb) Military Technical Supervisionc) Transport Technical Supervision
d) all answers are correct
44. 44. Qualification certificates authorizing the operation of technical devices are valid in:
a) the Republic of Poland
b) the European Unionc) have no specified area of validityd) Schengen area countries45. 45. The obligation to use personal protective equipment by operators of technical devices arises from:
a) the manufacturer's operation manualb) health and safety regulationsc) internal regulations
d) all answers are correct
46. 46. According to the regulation of the Council of Ministers regarding the types of technical devices subject to technical supervision, the following are subject to technical supervision:
a) lifts, cranes, hoists, winches and hoistsb) powered lift trucks with mechanical lifting drive, mobile platformsc) cable cranes, cabin conveyors and chairlifts
d) all answers are correct
47. 47. The operating instructions may not contain:
a) information about the dates and scope of maintenance inspections of technical devicesb) basic parameters and purpose of technical devices
c) dates of technical examinations carried out by the inspection unit
d) information on how to operate the device48. 48. The revision book of the device must contain:
a) a collection of protocols from examinations carried out by the inspection unit
b) a document in which maintenance inspections are recordedc) the content of current legal actsd) a list of authorized operators49. 49. The decision issued by UDT:
a) is not subject to appealb) can be changed by the PIP inspector
c) is subject to the possibility of appeal by the operator
d) each answer is incorrect50. 50. A person who can take the qualification verification exam is:
a) who submitted an application for qualification verificationb) who is at least 18 years oldc) who has no health contraindications to operate technical devices
d) all answers are correct
51. 51. After the technical inspection with a positive result, the UDT inspector:
a) extends the validity of the operator's qualification certificateb) marks the device with a sticker that is a permit for the use of the devicec) informs the user in writing in the maintenance log that he agrees to the operation of the device
d) prepares a protocol of the performed activities and issues an administrative decision allowing for operation
52. 52. Qualification certificates:
a) are valid indefinitelyb) are time-limited with a validity period dependent on the number of points obtained in the exam
c) are time-limited with a validity period in accordance with the provisions of the regulation on the procedure for checking qualifications
d) are valid for a period of 15 years53. 53. Making modifications to a technical device without agreement with the competent technical supervision authority:
a) is subject to a fine or restriction of freedom
b) is subject to a penalty ticketc) is not subject to a penaltyd) all answers are incorrect54. 54. Who allows the operation of a technical device without a valid decision permitting operation:
a) is subject to a fine or restriction of freedom
b) is not subject to a penalty if no accident occursc) is subject only to a fined) is subject to imprisonment55. 55. The operation manual is:
a) a collection of information necessary for the safe operation of the device provided by the manufacturer
b) a collection of recommendations issued by the Office of Technical Supervisionc) an instruction that must be created by the user of the deviced) all answers are correct56. 56. Qualification certificates for operation are not required:
a) if the machine is operated by its owner
b) if all mechanisms of the device have manual drive
c) if the device is used for private, non-profit purposesd) from persons over 60 years of age57. 57. A person holding qualification certificates can operate:
a) only devices listed in the scope of authorization
b) all devices subject to technical supervisionc) other devices subject to technical supervision with the employer's consentd) all UTB with a load capacity of up to 3.2 t58. 58. The duty of the operator of a technical device is:
a) to refuse to operate the device if the decision allowing the operation of this device has expiredb) to always comply with the supervisor's orders regarding the operation of the devicec) to adhere to the provisions contained in the operating instructions
d) answers a and c are correct
59. 59. Qualification certificates for operating technical devices are:
a) valid in the European Union
b) valid with an identity document
c) indefinited) all answers are correct60. 60. An operator who witnesses an accident is obliged to:
a) provide assistance to the victim(s) of the accidentb) secure the scene of the incidentc) notify the supervisor
d) all answers are correct
61. 61. The operator is not allowed to:
a) lift loads whose weights he cannot determine
b) check the technical condition of the technical devicec) comply with the provisions contained in the operating instructionsd) perform external inspections of the device62. 62. Forms of technical supervision are:
a) full supervision, simplified supervision, limited supervision
b) acceptance testing, periodic testing, and ad-hoc testingc) UDT, TDT, WDTd) all answers are correct63. 63. Lifting people with devices that have been designed and manufactured solely for lifting loads:
a) is permissible, after ensuring an appropriate level of safetyb) is prohibited
c) is permissible, after agreeing with the relevant technical supervision authority on the detailed operating conditions
d) is permissible once on a written order from a superior64. 64. Lifting loads using two or more UTB:
a) is permissible, provided that the operator develops detailed operating conditions describing organizational and technical activities that minimize risk
b) is always permissible if the load weight does not exceed the sum of the lifting capacities of the devices usedc) is permissible if the load weight does not exceed half the lifting capacity of each of the devices usedd) is never permissible65. 65. The presence of people under the lifted load is:
a) always prohibited
b) allowed for persons controlling the bottom of the load;c) allowed if the safety factor of the slings is not less than 5d) allowed if the safety factor of the slings is not less than 766. 66. Carrying loads over people is:
a) allowed provided that written permission is obtained from the person in charge of the transportb) allowed, after ensuring safety factors for slings and gripping devices greater than 10c) allowed provided that people are notified and equipped with personal protective equipment
d) all answers are incorrect
67. 67. Qualification certificates for operating technical devices subject to technical supervision are issued by:
a) the owner of the device
b) UDT, TDT, WDT
c) PIPd) all answers are incorrect68. 68. The examination board informs the interested person about the exam result:
a) within 7 days after the exam in written form
b) immediately after the exam
c) within 14 days after the exam in electronic formd) by registered mail or email after 30 working days from the date of the exam69. 69. The maintenance log should be kept:
a) only in paper form
b) in electronic or paper form
c) only in electronic formd) by the operator70. 70. The workplace instruction:
a) is always provided along with the operating instructions by the device manufacturerb) constitutes an unwritten collection of customs adopted in the workplace
c) is issued by the employer and contains detailed guidelines regarding health and safety at the workplace
d) does not apply to operators of mobile devices71. 71. After the expiration of the validity period of the qualification certificate for operating the technical device, the operator:
a) can operate the machine as long as they continue working for the same employerb) can operate the machine as long as they submit an application for the issuance of another certificate
c) can operate the machine only after obtaining a new qualification certificate
d) submits an application for an extension of the validity period of the qualification certificate72. 72. The extension of the validity of the qualification certificate occurs:
a) upon a written request from the operator
b) automatically after the expiration of the validity period of the certificatec) upon a written notification from the employer of the operatord) after a prior telephone notification73. 73. The lifting capacity of the machine is a parameter of the device directly related to:
a) the maximum height of the lifted loadb) the maximum volume of the lifted load
c) the maximum mass of the lifted load
d) the product of the mass and volume of the lifted load74. 74. The net mass of 1000 l of water is approximately:
a) 800 kgb) 900 kg
c) 1000 kg
d) 1100 kg75. 75. The mass of a load consisting of 40 packages of 25 kg each is:
a) 800 kg
b) 1000 kg
c) 1100 kgd) 900 kg76. 76. The mass of 60 cartons weighing 20 kg each is:
a) 800 kgb) 1000 kgc) 1100 kg
d) 1200 kg
77. 77. The mass of the lifted load can be determined based on:
a) the collective tag on the transported loadb) by calculating considering the specific weight and volumec) transport and warehouse documentation
d) all answers are correct
78. 78. Information regarding the lifting capacity of the device may be included:
a) in the operating manualb) on the nameplatec) on the technical device
d) all answers are correct
79. 79. The correct designation of the lifting unit is:
a) kg
b) Pac) mthd) mm80. 80. Which of the elements is not part of the hydraulic system of a lift truck?
a) pump, hydraulic lock, oil filter
b) starter, potentiometer, electric motor
c) manometer, check valve, air ventd) all answers are incorrect81. 81. The hydraulic lock provides protection against:
a) excessive pressure increase in the hydraulic system
b) the effects of a hydraulic hose rupture
c) unauthorized operation of the technical deviced) dividing the flow into individual circuits of the hydraulic system82. 82. The element that converts hydraulic oil pressure into mechanical motion is:
a) piston pump
b) hydraulic actuator
c) hydraulic distributord) relief valve83. 83. The element generating pressure in the hydraulic system of a lift truck is:
a) hydraulic motor
b) hydraulic pump
c) compressord) air compressor84. 84. The relief valve installed in the hydraulic system of lift trucks is designed to:
a) maintain constant pressure in the hydraulic system
b) keep the actuator in a fixed positionc) protect the lifting system from fallingd) supply the hydraulic system85. 85. A safe way to check the operation of the relief valve is carried out:
a) with a nominal load at a height of about 1/3 of the lifting heightb) with the engine running without a loadc) by tilting and holding the lever of the mechanism until the system reaches the extreme position
d) answers b and c are correct
86. 86. The hydraulic distributor is installed in the system for:
a) throttling pressure in individual circuitsb) protecting the system from excessive pressure increase
c) directing the flow of hydraulic oil to individual circuits
d) all answers are incorrect87. 87. The actuator element in the hydraulic system of the lifting truck is:
a) lifting mechanism actuatorb) hydraulic motorc) tilting mechanism actuator
d) all answers are correct
88. 88. The element protecting the hydraulic system from excessive pressure increase is:
a) hydraulic lockb) throttling valvec) hydraulic distributor
d) safety valve
89. 89. The check-throttling valve mounted in the lifting system of the lifting truck aims to:
a) reduce oil pressureb) protect the hydraulic pump from damage
c) slow down the lowering speed of the lifted load during a hydraulic hose rupture
d) block the lowering of the actuator during a hydraulic hose rupture90. 90. The safety valve in the hydraulic system of the lifting truck:
a) keeps the actuator piston in a fixed positionb) is a load-limiting element
c) protects the hydraulic pump from damage
d) limits the lowering speed of the lifted load in case of a hydraulic hose rupture91. 91. In the case of increased pressure, excess oil is discharged:
a) back to the oil tank
b) outside the truckc) to another section of the distributord) to the actuator92. 92. The criteria and conditions for the correct execution of hydraulic system tests are defined by:
a) the manufacturer of the technical device
b) the maintenance technicianc) the operatord) the UDT inspector93. 93. Batteries in an electric forklift:
a) are the power source for the systemsb) ensure the stability of the truckc) determine the speed of working movements
d) answers a and b are correct
94. 94. The parameters provided by the manufacturer on the nameplate of the batteries are:
a) rated voltage [V]b) capacity [Ah]c) own weight [kg]
d) all answers are correct
95. 95. The emergency stop switch is:
a) protected against accidental activationb) located close to the operatorc) red in color
d) answers b and c are correct
96. 96. Emergency stop switch STOP:
a) stops the operation of driving mechanismsb) stops the operation of lifting mechanismsc) activates warning signals
d) answers a and b are correct
97. 97. What type of tires are used in forklift trucks:
a) solidb) super elasticc) pneumatic
d) all answers are correct
98. 98. Who decides on the type and size of tires used in trucks:
a) tire manufacturerb) maintenance technician
c) truck manufacturer
d) UDT inspector99. 99. The limit wear of super elastic tires (in the absence of other guidelines) is:
a) minimum tread depth of 1.6 mm
b) reduction of tire thickness by 25% or to the indicator defining limit wear
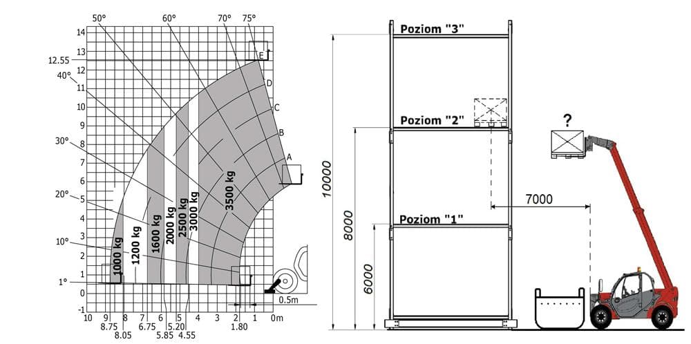
c) lack of treadd) minimum tread depth of 2 mm100. 100. What type of wear excludes solid tires from further operation:
a) any cuts and delaminations of rubber, mechanical damageb) lack of treadc) reduction of tire thickness below the indicator defining limit wear,
d) answers a and c are correct

101. 101. A lit oil pressure warning light may indicate:
a) low oil levelb) elevated engine temperature
c) too low oil pressure
d) answers a and c are correct
102. 102. The designation shown in the drawing is located on the lever:
a) lifting mechanism
b) mast tilt mechanismc) fork displacement mechanismd) carriage displacement mechanism
103. 103. Seeing a lit warning light, the operator:
a) should check if the belts are properly fastened
b) can continue workingc) can continue working at reduced speedd) all answers are correct
104. 104. The lever marked with the following pictogram, when tilted forward by the operator, will cause:
a) the forks to move down
b) the forks to move upc) mast tilt "towards oneself"d) mast tilt "away from oneself"
105. 105. The lever marked with the following pictogram, when tilted by the operator, will cause:
a) the forks to move downb) the forks to move up
c) movement of the mast tilt mechanism
d) movement of the carriage displacement mechanism106. 106. Forklift trucks with a seat for the operator must be equipped with:
a) service brakeb) parking brakec) wheel locking mechanism
d) answer a and b is correct
107. 107. The braking of the driven truck can be realized by:
a) foot brake pedalb) releasing pressure on the drive control lever of the truckc) tilting the leading drawbar to extreme upper and lower positions
d) answer b and c is correct
108. 108. The lifting mechanism system includes:
a) lifting system actuatorsb) load chainsc) carriage
d) all answers are correct
109. 109. Forklift trucks with a seat for the operator can be equipped with a mast type:
a) duplexb) triplexc) mast with free lift
d) all answers are correct
110. 110. What safety elements protect the operator in case of loss of stability of the forklift truck?
a) STOP connector
b) truck cabin, safety belt
c) supportsd) counterweight111. 111. What elements affect the stability of a front forklift?
a) cabin of the forklift, seat beltb) STOP connector
c) tire wear condition
d) all answers are correct112. 112. Gas cylinders used to power internal combustion forklifts are:
a) with a flange
b) red in colorc) used to power gas stovesd) answer a and b is correct113. 113. In forklifts, the lifting mechanism chain is:
a) a load-bearing link
b) an anti-slip linkc) a drive linkd) none of the above
114. 114. The designation in the diagram below represents:
a) control light for glow plugs
b) control light for chargingc) control light for hydraulic oil pressured) control light for lighting
115. 115. The designation in the diagram below represents:
a) light indicating incorrect connection of battery terminals (applies only to battery forklifts)b) light indicating battery efficiency, which applies only to battery forklifts
c) control light for battery charging
d) answer a and b is correct
116. 116. The designation in the diagram below represents:
a) indications of the lift limiter of the cart
b) coolant temperature control light
c) fuel level control lightd) battery charge level control light
117. 117. The designation in the diagram below represents:
a) control light - parking brake activation
b) control light - engine failurec) control light - overloadd) control light - excessive engine speed
118. 118. A lit or flashing control light:
a) indicates exceeding the service period or device failure
b) indicates the need to adjust the tension of the load cablesc) should be lit during engine operationd) all answers are incorrect119. 119. When operating a cart with interchangeable equipment, the operator should:
a) adhere to the operating instructions of the cart and the instructions for interchangeable equipmentb) comply with company regulationsc) follow the appropriate lifting diagram
d) all answers are correct
120. 120. Interchangeable equipment can be installed on the cart by:
a) the cart maintenance technician
b) the cart operator
c) the manufacturer of the interchangeable equipmentd) all answers are correct121. 121. What effect does the installed additional interchangeable equipment have on the forklift's lifting capacity:
a) increases the forklift's lifting capacity
b) decreases the forklift's lifting capacity
c) has no effectd) all answers are incorrect122. 122. After installing the interchangeable equipment provided by the forklift manufacturer:
a) the device must be reported for testing to UDT
b) the device can be operated without additional tests in UDT
c) the operator performs overload testsd) the operator makes an entry in the maintenance log
123. 123. The lever marked with the following pictogram, when tilted by the operator, causes:
a) activation of the lifting mechanismb) activation of the tilting mechanism
c) activation of the lateral movement mechanism
d) all answers are incorrect124. 124. Operating the forklift with extensions mounted on the forks is allowed when:
a) the manufacturer has not prohibited such operationb) the device is equipped with a relevant lifting diagramc) the installation of extensions has been carried out according to the manufacturer's recommendations
d) all answers are correct
125. 125. The electrical protection mounted at the end of the forklift's drawbar is:
a) STOP switch
b) belly switch
c) load chain release contactd) all answers are correct126. 126. Which of the equipment elements prevents the device from being started by unauthorized persons?
a) STOP switchb) ignition keyc) access code keyboard
d) answer b and c is correct
127. 127. The feature 1500 x 500 located on the fork means:
a) maximum load of one fork amounting to 1.5 t at a distance of 500 mm from the fork tip
b) maximum load of a pair of forks amounting to 1.5 t at a distance of 500 mm from the fork tipsc) external dimensions of the load forkd) quality control symbol128. 128. The maximum load that can be lifted on a pair of forks marked 2500 x 500 each is:
a) 0.5 tb) 2.5 t
c) 5.0 t
d) 12.0 t129. 129. Working with a lift truck with too low oil level in the hydraulic system may manifest as:
a) "jerky", intermittent movement of the actuator upwardsb) lack of execution of the required movements of the lifting mechanismc) loud operation of the hydraulic pump
d) all answers are correct
130. 130. "Jerky" movement of the lifting mechanism upwards may be caused by:
a) too low oil level in the hydraulic system
b) excessive corrosion of the lifting system chainc) damaged guide roller of the mastd) damaged hydraulic line supplying the lifting actuator131. 131. A leak in the hydraulic system of a forklift truck may manifest as:
a) external leakageb) uncontrolled dropping of the loadc) 'jerky', intermittent movement of the actuator upwards
d) answers a and b are correct
132. 132. The density of hydraulic oil at negative temperature:
a) decreases
b) increases
c) temperature has no effect on the density of the oild) remains unchanged133. 133. The operator checks the oil level in the hydraulic system:
a) always before starting and after finishing workb) always once a month
c) according to the recommendations in the operating manual
d) according to the recommendations in the periodic inspection protocol134. 134. Unless the manufacturer specifies otherwise, the maximum deviation from the vertical position of the mast loaded with the rated weight, caused by internal leakage in the tilt system, should not exceed:
a) 5% in 10 minutes
b) 5° in 10 minutes
c) 10° in 10 minutesd) no established guidelines135. 135. Unless the manufacturer specifies otherwise, the component of the lowering of the lifting mechanism of a truck with a capacity of up to 10 tons loaded with the rated weight should not exceed:
a) 100 mm in the first 10 minutes
b) 50% of the length of the actuator in the first 10 minutesc) 200 mm in the first 10 minutesd) all answers are incorrect136. 136. Unless the manufacturer specifies otherwise, the drop component of the lifting mechanism of a cart with a load capacity of over 10 tons loaded with nominal weight should not exceed:
a) 100 mm in the first 10 minutesb) 50% of the cylinder length in the first 10 minutes
c) 200 mm in the first 10 minutes
d) all answers are incorrect137. 137. The optimal load required to conduct an internal tightness test of the hydraulic system is:
a) 50% of the nominal load
b) 100% of the nominal load
c) 110% of the nominal loadd) 125% of the nominal load138. 138. Unless the manufacturer's guidelines state otherwise, the minimum height to which the load must be lifted during the internal tightness test of the mast tilt system is:
a) 100mmb) 500mc
c) 2500mm
d) the test is not performed139. 139. The safe way to check the operation of the relief valve should be performed:
a) with nominal loadb) with 50% nominal load
c) without load
d) with 125% nominal load140. 140. The inspection of the hydraulic system in lift trucks includes:
a) internal tightness testb) relief valve testc) assessment of external tightness
d) all answers are correct
141. 141. The correctness of the operation of control levers should be checked:
a) by checking the compliance of the performed movements with the markingsb) without loadc) by moving the control levers in all directions provided by the manufacturer
d) all answers are correct
142. 142. The scope of tests conducted on lift trucks equipped with hydraulic additional equipment includes:
a) all hydraulic equipment of the truck along with additional equipment
b) the equipment is not part of the truck and is not subject to inspection by the operatorc) tests verifying the correctness of operation are performed only by the maintenance techniciand) a test with a load of 125%143. 143. Acid batteries can be charged:
a) in any room regardless of its purposeb) only in an air-conditioned room
c) in a place specifically designated for this purpose
d) only in heated rooms144. 144. The room where the charging of the truck's batteries takes place:
a) does not need to have ventilation, but must be heatedb) must be heated and must have ventilation
c) must have ventilation
d) lack of clear guidelines145. 145. The operator's duty for lift trucks is:
a) to check the state of charge of the batteryb) to check the level of electrolytec) to check the correctness of the battery mounting
d) all answers are correct
146. 146. The person replacing discharged batteries should:
a) have electrical qualifications SEP
b) follow the guidelines contained in the instruction
c) have a qualification certificate for the maintenance of forkliftsd) have a qualification certificate for operating forklifts147. 147. The safety switch "STOP" is used for:
a) emergency stopping of the forklift
b) normal stopping of the enginec) protects against starting the forklift by unauthorized personsd) all answers are incorrect148. 148. In the event of a dangerous situation, the forklift operator is obliged to:
a) stop the forkliftb) cease workc) lower the load (provided it does not increase the danger)
d) all answers are correct
149. 149. The correctness of the operation of the safety switch STOP should be checked:
a) only during maintenance inspectionsb) only as part of special inspections
c) always before starting work
d) there is no need to check the correctness of operation150. 150. The limit values for tire wear are included in:
a) CE declaration of conformity
b) forklift operating manual
c) protocol from UDT testsd) machinery directive151. 151. The pressure in the tires should be adjusted to:
a) the recommendations of the operating instructions of the machine
b) only the conditions prevailing at the place of operationc) the preferences of the operatord) the requirements of the landowner152. 152. Unequal pressure in the tires on one axle can cause:
a) improvement of the driving properties of the machine
b) reduction of the stability of the machine during the transport of loads
c) no impact on the stability of the machined) all answers are incorrect153. 153. The influence on the accelerated wear of pneumatic tires is:
a) sudden braking, hitting obstacles at high speedb) driving with too low pressurec) maneuvering the machine in a small space
d) all answers are correct
154. 154. Uneven wear of solid tires located on a common axle:
a) improves the driving properties of the machineb) has no impact on safe operation
c) can cause loss of stability of the machine
d) all answers are incorrect155. 155. The assessment of the technical condition of the tires is carried out by:
a) the maintenance technician during maintenance inspectionsb) the operator as part of the activities before starting workc) the UDT inspector during the performed activities
d) all answers are correct
156. 156. In the case of detecting mechanical damage to the tires that affects safe operation, the operator of the truck:
a) informs the supervisor about the detected non-compliance but does not stop working
b) stops the operation of the device and informs the supervisor about the detected non-compliance
c) continues working by reducing the driving speedd) continues working by reducing the movement speed157. 157. After noticing a lit oil pressure warning light while driving, the operator should:
a) pull over to a safe place, lower the load, turn off the engine
b) may continue driving if the oil level is correctc) does not have to take any actiond) answers b and c are correct158. 158. After finishing work, the operator should:
a) ensure that the forks are lowered, the truck is in a permanent parking position and does not pose a threatb) engage the parking brakec) press the STOP switch
d) answers a and b are correct
159. 159. Functional control levers:
a) should automatically return to the neutral position after releasing pressureb) may not have markings if the operator knows their purposec) should perform movement directions in accordance with the markings
d) answers a and c are correct
160. 160. The description of the test to check the correct operation of the service brake describes:
a) the operating manual of the truck
b) the technical supervision actc) the machinery directived) internal company regulations161. 161. Information regarding the method of checking the correctness of the auxiliary brake operation is contained in:
a) regulation on the operation of technical devices for transport
b) operating instructions for the truck
c) act on technical supervisiond) guidelines of the OHS inspector162. 162. During the main brake test, the mast should be in the position:
a) the position of the mast does not matter
b) tilted "towards itself"
c) tilted "away from itself"d) vertical163. 163. The main brake test should be conducted:
a) with a load of 110% of the device's capacityb) with a load of 125% of the device's capacityc) without a load
d) without a load and then with the rated load
164. 164. If during the auxiliary brake test the operator finds that its operation is incorrect, he should:
a) suspend the operation of the deviceb) inform the supervisorc) continue working at a reduced speed
d) answers a and b are correct
165. 165. In the event of a failure of the braking system, the operator should:
a) repair the brake within the scope of their competencies
b) suspend the operation of the device
c) inform the Technical Supervision Officed) continue working with special caution166. 166. In the event of a brake fluid leak, the operator should:
a) top up the brake fluid and continue driving until the work is finished
b) stop the operation of the technical device and notify the supervisor
c) stop the operation of the technical device and notify the UDT inspectord) answers b and c are correct167. 167. In the event of improper operation of the auxiliary brake, the operator:
a) repairs it at the clear request of the supervisorb) reports the failure to UDT
c) stops the operation of the technical device and informs the supervisor
d) all answers are correct168. 168. The main brake should be checked while driving the forklift and braking:
a) forwardb) backward
c) in both directions
d) the brake is checked only by the maintenance technician169. 169. The operator should conduct a brake check:
a) according to the deadlines specified in the maintenance instructionsb) once a monthc) once a week
d) always before starting work
170. 170. When getting off the operator's seat, the person operating the forklift should:
a) always engage the parking brake
b) engage the parking brake only if the forklift is stopped on an inclinec) raise the forks to the maximum heightd) tilt the mast to the "toward oneself" position171. 171. The scope of control activities of the forklift mast includes:
a) check for cracksb) check the condition of the guide rollersc) check the end limiter of the carriage position
d) all answers are correct
172. 172. When driving a forklift with a load on the forks, one should:
a) manipulate the mast tilt depending on the terrain
b) move with the mast tilted "towards oneself"
c) transport the load in any way chosen by the operatord) manipulate the mast tilt depending on the speed of movement173. 173. The load should be transported:
a) at a height above the operator's line of sight, if it improves visibility
b) at a height of about 20-30 cm above the ground level
c) at any heightd) at a height of about 90 cm174. 174. When descending a sloping ramp with a front forklift and a load, the operator:
a) moves forwardb) moves backwardc) exercises special caution
d) answers b and c are correct
175. 175. When entering a sloping ramp with a wheeled forklift with a load that limits visibility, the operator:
a) uses the help of another personb) moves forwardc) moves backward
d) answers a and b are correct
176. 176. Moving a cart across an inclined ramp is:
a) prohibited
b) allowedc) permissible provided that special caution is exercisedd) permissible provided that the cart is loaded with a load raised to a minimum height177. 177. When moving a cart with a load that restricts the operator's visibility, the operator should:
a) drive backwardsb) drive forwards, with the help of a person informing about hazardsc) move at a safe speed
d) all answers are correct
178. 178. When driving a lift truck with a load, one should:
a) avoid sudden turnsb) transport the load at a transport heightc) adjust the driving speed to the prevailing conditions
d) all answers are correct
179. 179. The outlet of the gas cylinder valve should be directed:
a) downwards
b) upwardsc) horizontallyd) position does not matter180. 180. The tightness of the gas installation is checked using:
a) gas detectorb) special agentc) soapy water
d) all answers are correct
181. 181. Operation of the forklift at temperatures below -10°C:
a) is allowed provided the forklift is equipped with a heating system for the operator's cabin
b) is allowed if the operating instructions permit it
c) is prohibited due to the possibility of losing tractiond) is prohibited due to changes in the technical parameters of the hydraulic oil182. 182. Operation of the forklift at temperatures above 30°C:
a) is prohibited due to worsening working conditions for the operatorb) is allowed provided the forklift is equipped with an air-conditioned operator's cabinc) is prohibited due to changes in the technical parameters of the hydraulic oil
d) is allowed if the operating instructions permit it,

183. 183. Based on the tables, determine what maximum load the load socket of the shelf can carry:
a) 1320 kgb) 1100 kgc) 2700 kg
d) 2200 kg

184. 184. Based on the tables, determine which highest load socket you will use to place the goods with a forklift that has a maximum lifting height of 2100 mm:
a) socket 1b) socket 2
c) socket 3
d) socket 4185. 185. When placing a load on the storage shelf, the operator should know:
a) the weight of the goods and the maximum load of the shelf socketb) the weight of the goods and the minimum load of the shelf framec) the external dimensions of the transported load
d) answers a and c are correct
186. 186. During the transport of oversized loads, the operator should:
a) drive backwardsb) drive forwards leaning outside the outline of the cartc) drive forwards with the help of another person
d) answers a and c are correct
187. 187. What should the operator pay attention to when replacing traction batteries?
a) the weight and dimensions of the batteriesb) the capacity of the batteriesc) the address details of the battery manufacturer
d) answers a and b are correct
188. 188. The cause of the loss of stability of the cart may be:
a) too low tire pressureb) fast driving in turnsc) sudden braking while driving with a load
d) all answers are correct
189. 189. The permissible speed of the cart is specified:
a) in the act on technical supervisionb) in the inspection protocol issued by UDTc) in the decision allowing for operation
d) all answers are incorrect
190. 190. Before starting work with the cart, it is necessary to check the functioning of:
a) the hydraulic systemb) the braking systemc) the steering system
d) all answers are correct
191. 191. After installing additional interchangeable equipment, one should:
a) familiarize oneself with the appropriate lifting diagram
b) report to UDT for a technical examinationc) check if the scope of the obtained permissions for operation includes the installed equipmentd) all answers are correct192. 192. Before driving the forklift onto the loading ramp, the operator should check:
a) the slope angle of the ramp and the forklift's ability to overcome inclinesb) the load capacity of the rampc) the weight of the load and the own weight of the forklift
d) all answers are correct
193. 193. When driving the forklift, one must:
a) comply with health and safety regulationsb) adhere to signs, markings, and symbols placed in the work area of the forkliftc) follow the operating instructions of the forklift
d) all answers are correct
194. 194. Where can information regarding the forklift's lifting capacity be found:
a) in the forklift's operating manualb) on the nameplate of the forkliftc) on the lifting diagram
d) all answers are correct
195. 195. Before starting work with the forklift, one should:
a) familiarize oneself with the scope of workb) determine the weight of the transported loadc) check if the forklift's equipment is properly matched to the load
d) all answers are correct
196. 196. The operation of a lift truck with a basket for lifting people mounted on forks:
a) is allowed only after agreeing on the detailed operating conditions with UDT
b) is allowed without additional requirementsc) is prohibitedd) is allowed with the owner's consent without additional requirements197. 197. In the event that the lift truck loses stability, the operator:
a) tries to exit the truck's cabin (before it tips over)b) remains in the cabinc) maintains a sitting position holding tightly to the steering wheel
d) answers b and c are correct
198. 198. At the moment of tipping over the lift truck, one should:
a) immediately jump out of the cabinb) brake sharplyc) sharply turn the wheels in the direction of the tilt to try to prevent tipping over
d) all answers are incorrect
199. 199. The lift truck can lose stability due to:
a) lifting a load heavier than the truck's capacityb) making sharp turns of the wheels while drivingc) turning the truck on an incline
d) all of the above are correct
200. 200. Unless the lift truck's manual states otherwise, the maximum extension of the load chain during operation may be:
a) 3 cmb) 3 mm
c) 3%
d) 10%201. 201. If the forklift manual does not state otherwise, the permissible number of cracked load chain plates (Flyer construction) is:
a) 3% of the total number of platesb) 6 pieces over a length of 30 linksc) 1 piece for every meter of chain
d) 0
202. 202. If the forklift manual does not state otherwise, the minimum permissible thickness of the horizontal part of the forks measured near their corner (heel) is:
a) 25 mm at a nominal thickness of 30 mmb) 57 mm at a nominal thickness of 60 mm
c) 36 mm at a nominal thickness of 40 mm
d) always 50% of the nominal thickness of the forks203. 203. If the forklift manual does not state otherwise, the minimum permissible thickness of the horizontal part of the forks measured near their corner (heel) is:
a) 27 mm at a nominal thickness of 30 mm
b) 57 mm at a nominal thickness of 60 mmc) 25 mm at a nominal thickness of 30 mmd) always 50% of the nominal thickness of the forks204. 204. If the forklift manual does not state otherwise, the minimum permissible thickness of the horizontal part of the forks measured near their corner (heel) is:
a) 25 mm at a nominal thickness of 30 mm
b) 55 mm at a nominal thickness of 60 mm
c) 40 mm at a nominal thickness of 60 mmd) always 50% of the nominal thickness of the forks205. 205. If the forklift manual does not state otherwise, the minimum permissible thickness of the horizontal part of the forks measured near their corner (heel) is:
a) 25 mm at a nominal thickness of 30 mm
b) 45 mm at a nominal thickness of 50 mm
c) 50 mm at a nominal thickness of 60 mmd) always 50% of the nominal thickness of the forks206. 206. If the forklift manual does not state otherwise, the maximum allowable fork deflection from the original value (usually 90 degrees) is:
a) 1 cmb) 3%
c) 3 degrees
d) 0 degrees207. 207. Checking the correct operation of the hydraulic system in forklifts with variable reach includes at least:
a) internal leak testb) relief valve testc) hydraulic lock test
d) all answers are correct
208. 208. The minimum safe working distance of the forklift near an excavation depends on:
a) soil categoryb) lack of unambiguous valuesc) depth of the excavation
d) answers a and c are correct

209. 209. The presented drawing indicates:
a) lifting height indicatorb) engine temperature indicator
c) load limiter indicator
d) tilt angle indicator210. 210. The device securing the forklift with variable reach against tipping over is:
a) load limiter
b) operator cabinc) operator safety beltsd) all answers are correct211. 211. A properly functioning load limiter in forklifts with variable reach causes:
a) activation of the sound signalb) in some design solutions, disabling the telescoping mechanism in the direction of increasing reachc) in some design solutions, disabling the lifting mechanism in the downward direction
d) all answers are correct
212. 212. In the event of a hydraulic system failure with the cabin raised and no possibility of emergency descent, the operator should:
a) leave the cabin by descending the shelfb) leave the cabin by descending the forklift structure
c) evacuate from the cabin using the rescue kit available in the cabin
d) call the UDT inspector213. 213. In the event of a forklift failure, with the cabin raised, the operator should:
a) notify UDTb) descend the warehouse shelf structure with special caution
c) leave the cabin using the emergency descent system
d) call the fire department214. 214. A device protecting the operator from crushing or falling, installed in forklifts with the operator raised along with the load, can be:
a) operator seat sensorb) both hands occupancy sensorc) entry barrier connector
d) all answers are correct
215. 215. An element aimed at ensuring the correct position of the operator in a forklift with the operator raised along with the load can be:
a) both hands occupancy sensorb) operator seat occupancy sensorc) safety harness to protect the operator from falling from height
d) answers a and b are correct
216. 216. Electrical protections characteristic for a machine with an operator raised along with the load are:
a) belly switch, overload limiter
b) both arms occupancy sensor, chain release contact, cabin barrier contacts
c) STOP switch, support deployment contactd) all answers are correct
217. 217. Based on the presented lifting diagram and drawing, determine the maximum safe height for lifting the load taken from side A:
a) 4836 mm
b) 4030 mmc) 3100 mmd) all answers are incorrect
218. 218. Based on the presented lifting diagram and drawing, determine the maximum safe height for lifting the load taken from side B:
a) 3100 mmb) 4836 mm
c) 4030 mm
d) all answers are incorrect
219. 219. Based on the presented lifting diagram and drawing, determine the maximum safe height for lifting the load taken from side A:
a) 3510 mm
b) 4212 mmc) 2700 mmd) all answers are incorrect
220. 220. Based on the presented lifting diagram and drawing, determine the maximum safe height for lifting the load taken from side B:
a) 4212 mmb) 2700 mmc) 3520 mm
d) all answers are incorrect

221. 221. Based on the presented lifting diagram and drawing, determine the maximum safe lifting height of the load taken from side A:
a) 2600 mmb) 3380 mm
c) 4056 mm
d) all answers are incorrect
222. 222. Based on the presented lifting diagram and drawing, determine the maximum safe lifting height of the load taken from side B:
a) 4056 mm
b) 2600 mm
c) 3380 mmd) all answers are incorrect
223. 223. Based on the presented lifting diagram and drawing, determine the maximum safe lifting height of the load taken from side A:
a) 3640 mmb) 4368 mm
c) 2800 mm
d) all answers are incorrect
224. 224. Based on the presented lifting diagram and drawing, determine the maximum safe lifting height of the load taken from side B:
a) 2800 mmb) 3640 mmc) 4368 mm
d) all answers are incorrect

225. 225. Based on the presented lifting diagram, determine the maximum lifting capacity of the cart at a height of 6 m:
a) 1300 kg
b) 1500 kg
c) 1700 kgd) 2000 kg
226. 226 Based on the presented lifting diagram, determine the maximum lifting capacity of the cart at a height of 6.7 m:
a) 1400 kgb) 1200 kg
c) 1000 kg
d) 1300 kg
227. 227 Based on the presented lifting diagram, determine the maximum load mass with a base dimension of 1.6 m x 1.6 m:
a) 4.5 t
b) 4.0 t
c) 3.5 td) 3.0 t
228. 228 Based on the presented lifting diagram, determine the maximum load mass with a base dimension of 2 m x 2 m:
a) 2.5 t
b) 3.5 t
c) 4.5 td) 3.0 t
229. 229. Based on the presented lifting diagram and drawing, determine the maximum safe lifting height of the load taken from direction A:
a) 2350 mm
b) 3300 mm
c) 1400 mmd) 1300 mm
230. 230. Based on the presented lifting diagram and drawing, determine the maximum load mass taken from side B:
a) 1300 kg
b) 1400 kg
c) 1500 kgd) 2300 kg
231. 231. Based on the presented lifting diagram and drawing, determine the maximum mass of the load taken from side A:
a) 1500 kgb) 2000 kg
c) 2300 kg
d) 2500 kg
232. 232. Based on the presented lifting diagram and drawing, determine the maximum mass of the load taken from side B:
a) 1100 kg
b) 1450 kg
c) 1800 kgd) 2300 kg
233. 233. Based on the presented lifting diagram and drawing, determine the maximum mass of the load that can be safely lifted when taking the load from side A:
a) 1500 kgb) 2000 kgc) 2300 kg
d) 1800 kg

234. 234. Based on the presented lifting diagram and drawing, determine the maximum mass of the load that can be safely lifted when taking the load from side A:
a) 2695 kgb) 3185 kg
c) 3500 kg
d) all answers are incorrect
235. 235. Based on the presented lifting diagram and drawing, determine the maximum mass of the load that can be safely lifted when taking the load from side B:
a) 2695 kgb) 3500 kg
c) 3185 kg
d) all answers are incorrect
236. 236. Based on the presented lifting diagram and drawing, determine the maximum safe lifting height of the load taken from direction A:
a) 700 mmb) 1200 mm
c) 4500 mm
d) 1800 mm
237. 237. Based on the presented lifting diagram, determine the maximum lifting capacity of the cart lifting a load to a height of 3000 mm:
a) 2400 kg
b) 3600 kg
c) 3500 kgd) 1500 kg
238. 238. Based on the presented lifting diagram, determine the maximum lifting capacity of the cart lifting a load to a height of 4000 mm:
a) 3300 kgb) 4000 kg
c) 3400 kg
d) all answers are incorrect
239. 239. Based on the presented lifting diagram, determine the maximum lifting capacity of the cart lifting a load to a height of 5000 mm:
a) 4000 kgb) 2700 kgc) 3400 kg
d) all answers are incorrect

240. 240. Based on the presented lifting diagram and drawing, determine the maximum mass of the load that can be safely lifted to a height of 4000 mm, taken from side B:
a) 3400 kg
b) 2900 kg
c) 2700 kgd) 3600 kg
241. 241. Based on the presented lifting diagram and drawing, determine the maximum mass of the load that can be safely lifted to a height of 4000 mm, taking from side A:
a) 2900 kgb) 3600 kg
c) 3400 kg
d) 3200 kg
242. 242. Based on the presented lifting diagram and drawing, indicate which shelf or shelves the load can be placed on:
a) Shelf 1b) Shelf 2c) Shelf 3
d) all answers are correct

243. 243. Based on the presented lifting diagram and drawing, indicate which shelf or shelves the load can be placed on:
a) Shelf 1
b) Shelf 2c) Shelf 3d) all answers are correct
244. 244. Based on the presented lifting diagram and drawing, indicate which shelf or shelves the load can be placed on:
a) Shelf 1b) Shelf 2c) Shelf 3
d) answers a and b are correct

245. 245. Based on the presented lifting diagram and drawing, determine the maximum mass of the load taken from side B:
a) 1000 kgb) 1200 kg
c) 1500 kg
d) 2300 kg
246. 246. Based on the presented lifting diagram and drawing, determine the maximum mass of the load taken from side A:
a) 1600 kgb) 1900 kg
c) 2300 kg
d) 2500 kg
247. 247. Based on the presented lifting diagram and drawing, determine the maximum safe lifting height of the load taken from direction A:
a) 5940 mm
b) 7890 mmc) 3600 mmd) 4500 mm
248. 248. Based on the presented lifting diagram and drawing, determine the maximum safe lifting height of the load taken from direction B:
a) 5940 mmb) 7890 mm
c) 3600 mm
d) 4500 mm
249. 249. Based on the presented lifting diagram and drawing, determine the maximum safe lifting height of the load taken from direction A:
a) 4860 mmb) 8820 mm
c) 7070 mm
d) 10820 mm
250. 250. Based on the presented lifting diagram and drawing, determine the maximum safe lifting height of the load taken from direction B:
a) 4860 mm
b) 5660 mm
c) 7070 mmd) 10820 mm
251. 251. Based on the presented lifting diagram and drawing, determine the maximum load mass taken from side A:
a) 400 kgb) 600 kgc) 1500 kg
d) 2000 kg

252. 252. Based on the presented lifting diagram and drawing, determine the maximum load mass taken from side B:
a) 400 kgb) 600 kg
c) 1500 kg
d) 2000 kg
253. 253. Based on the presented lifting diagram and drawing, determine the maximum load mass taken from side A:
a) 1400 kg
b) 1255 kgc) 1040 kgd) 840 kg
254. 254. Based on the presented lifting diagram and drawing, determine the maximum load mass taken from side B:
a) 1400 kgb) 1255 kg
c) 1040 kg
d) 840 kg
255. 255. Based on the diagram, determine the maximum height to which a load of 4.0 t can be lifted:
a) 8.0 m
b) 12.5 m
c) 14.0 md) 16.9 m
256. 256. Based on the diagram, determine the maximum height to which a load of 3.0 t can be lifted:
a) 9.0 mb) 12.5 mc) 17.55 m
d) 15.0 m

257. 257. Based on the diagram, determine the maximum height to which a load of 3 t can be lifted:
a) 8.0 mb) 9.0 mc) 10.5 m
d) 12.55 m

258. 258. Based on the diagram, determine the maximum reach for a load of 1.6 t:
a) 5.20 m
b) 6.75 m
c) 8.75 md) 4.55 m
259. 259. Based on the diagram, determine the maximum reach for a load of 4.0 t:
a) 3.2 mb) 4.0 m
c) 2.6 m
d) 5.0 m
260. 260. Based on the diagram, determine what load can be placed at a distance of 5 m:
a) 5.0 tb) 4.2 tc) 3.2 t
d) 1.4 t

261. 261. Based on the diagram, the parameters of the machine are:
a) maximum load 4.0 tb) maximum lifting height 16.9 mc) maximum load 3.5 t
d) answers a and b are correct

262. 262. Based on the diagram, determine the maximum height to which a load of 3.0 t can be lifted:
a) 13 m
b) 14.5 m
c) 12 md) 16 m
263. 263. Based on the diagram, determine the maximum reach for a load of 4.0 t:
a) 1 m
b) 3 m
c) 5 md) 4 m
264. 264. Based on the diagram, determine the maximum height to which a load of 1.5 t can be lifted:
a) 4.4 mb) 6.7 mc) 5.0 m
d) 7.1 m

265. 265. Based on the diagram, determine the maximum reach for a load of 1.5 t:
a) 2.5 m
b) 3.6 mc) 1.8 md) 3.0 m
266. 266. According to the provided load diagram, in the situation shown in the picture, the operator can:
a) place the load at level "3"b) place the load at level "2"c) place the load at level "1"
d) all answers are correct

267. 267. What can be the mass of the lifted load in the case where, according to the provided load diagram, the operator's task is to place the load at level:
a) 1500 kg
b) 1800 kg
c) 2000 kgd) 2200 kg
268. 268. The maximum lifting height of a load weighing 3.5 t is:
a) 13.5 m
b) 12.55 m
c) 11.50 md) 10.0 m
269. 269 The maximum lifting height of a load weighing 2.5 t is:
a) 12.55 m
b) 11.6 mc) 9.6 md) 10.2 m
270. 270 According to the provided diagram, the maximum reach of a load weighing 1.2 t is:
a) 8.75 mb) 6.4 mc) 7.2 m
d) 8.05 m

271. 271 How much can the mass of the lifted load be in the case where, according to the provided lifting diagram, the operator's task is to place the load at level 2?
a) 1200 kgb) 1600 kgc) 2000 kg
d) none of the above due to an obstacle

272. 272 Based on the diagram, the parameters of the cart are:
a) maximum reach 13.08 mb) maximum lifting height 17.55 mc) maximum load capacity 4.0 t
d) all answers are correct

273. 273 Based on the diagram, determine the maximum reach for a load of 2.0 t:
a) 2.0 mb) 2.9 mc) 3.7 m
d) 4.5 m

274. 274 Based on the diagram, determine the maximum reach for a load of 2.0 t:
a) 5.0 mb) 8.4 m
c) 6.3 m
d) 7.2 m
275. 275 Based on the diagram, determine the maximum reach for a load of 2.5 t:
a) 6.4 mb) 4.8 t
c) 5.2 m
d) 8.05 m
276. 276 The illuminated oil pressure warning light may indicate:
a) too low brake fluid levelb) elevated engine temperature
